The Grand
Gevelrenovatie van een Gemeentelijk – en Rijksmonument
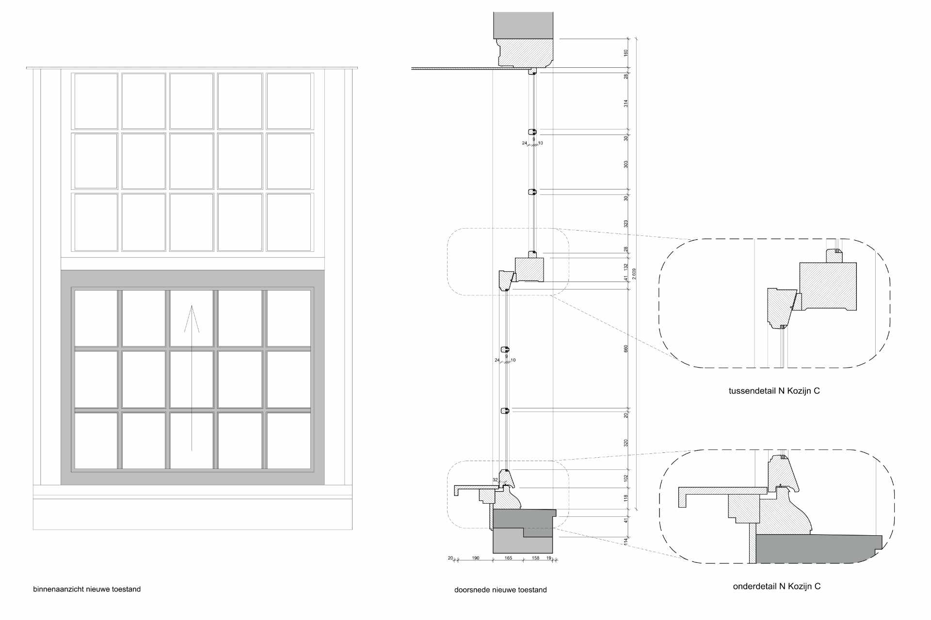
Hotel Sofitel Legend The Grand, één van meest vooraanstaande hotels in Amsterdam, is gevestigd in het monumentale complex van het voormalig stadhuis. Bij een hotel van dit statuur voldeden de ramen en kozijnen, kierend en voorzien van enkel glas, niet aan het gewenste comfort. De klachten over kou, tocht en buitengeluid namen steeds meer toe.
Met behoud van het monumentale karakter van het gebouw zijn alle ramen gerestaureerd. Alle ramen zijn daarbij voorzien van hoogwaardig monumentenglas met een lage U-waarde, dubbele tochtwering is alle raamopeningen en nieuw hang- en sluitwerk. Met het resultaat voldoet het complex weer aan de hoogste comfort eisen.

Opdrachtgever The Grand Real Estate

Opdracht integrale advisering

Plan voorbereiding 2011-2014 gefaseerd

Uitvoering 2012-2015 gefaseerd

Verantwoordelijke Ramon Pater

Projectleider Wouter van Wolput

Aannemer Bouwborg Noordwest