TBS inrichting
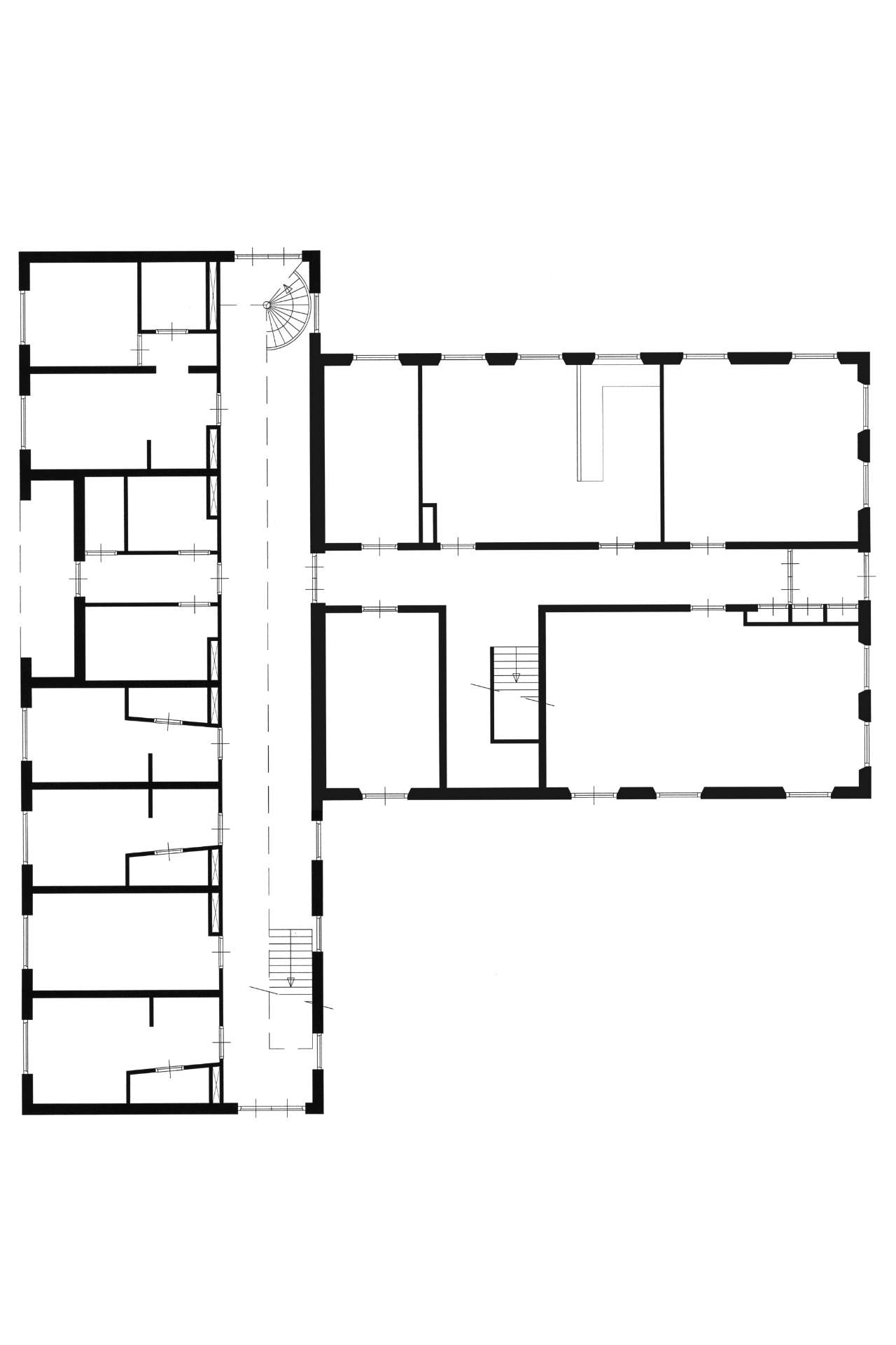
In het 19e eeuwse regentenhuis van de TBS inrichting te Balkbrug zijn de gemeenschappelijke functies en de personeelsruimten ondergebracht. Naar de openbare weg toe is het beeld niet gewijzigd. Achter het huis is als een rug een nieuw bouwdeel toegevoegd, direct met het oude huis versmolten. In de nieuwbouw zijn in twee lagen aan een over twee verdiepingen hoge hal de kamers van de bewoners ondergebracht.

Opdrachtgever Rijksgebouwendienst Directie Oost

Oppervlakte 684 m2

Plan voorbereiding 1992

Uitvoering 1993

Project architect Martin van Dort